三亚半山首府营销中心电话0898-88868816【已认证】【24小时电话】
【欢迎来电预约看房0898-88868816 提前预约享受专属特价房源优惠】
三亚半山首府开发商营销中心——欢迎来电预约尊享折扣——恭迎品鉴
海南自贸港 时代的机遇
三亚,中国唯一位于北纬18°的城市,阳光沙滩、椰风海浪,被誉为“上帝最恩宠的地方”。年均气温25°,花开四季,终年无冬,中国旅居生活最佳目的地。这是一座被自然偏爱的城市,坐拥209公里海岸线,森林覆盖率面积高达69%,空气优良率达98%,负氧离子浓度3000个/㎡,自然惬意,可满足家庭关于度假的一切想象。(以上信息来源于三亚市人民政府官网)
2018年9月,国务院批复设立中国(海南)自由贸易试验区,范围覆盖全岛,对标香港与迪拜,国家相关优惠举措陆续落位,海南自贸港大有可为。(以上信息来源于海南自由贸易港官网)

半山首府70年产权 城市中心 山海墅级豪宅
非凡自然,向来是塔尖人群所向往和追求的理想境界。山的伟岸,海的澎湃,极致境界造就非凡居所。
三亚·半山首府择址大东海榆亚路中段,拥半山而立,坐享世界级湾区。于此,停泊世界的意志,达成“人生至此不远游”的臻我境界。
海南冠洋四通投资有限公司历经三年潜心规划、精心打磨,继三亚大东海酒店落成后又一全新府系力作,携223席建面约103㎡ - 237㎡山海墅级府邸,即将耀世而来。

世界的湾区 尽在执掌之间
大东海-榆林湾,一个城市的湾区,承载三亚城市转型与中心东扩的未来。一条榆亚路,联通四大湾区生活。
三亚·半山首府紧邻大东海核心商圈,坐拥夏日百货、1号港湾城、鸿港新MALL城等醇熟商业,休闲、度假、教育、医疗周边配套丰富一应俱全,生活所需,度假所享,五分钟生活圈轻松切换。交通便利,30分钟通达全城,揽榆林湾、三亚湾、亚龙湾、海棠湾四大湾区,安放完美度假生活的理想之地。

1.35超低容积率
礼遇70年产权墅级山海大宅
珍稀,就是在无可复制的土地上创造世界级高端生活方式。
项目利用原生山林与山谷的独特地势,建造在倚山面海的原生坡地之上,巧妙运用台地高差,依山建宅。建筑风格采用现代风融合中国建筑特色的设计,利用特殊材质增加其独特的建筑语言,设计独特精致,时代感跃然心生,形成别具特色倍显尊崇的唯美建筑视觉。
3栋低密纯板高层建筑,一字布局,南北通透,户户皆享超大观景阳台180°瞰海观山的极致视觉,海天山色尽收眼底。1.35绝版超低容积率只为成就223席高端舒适的完美胜境。

四大生活仪式 尊重你归家的每一步
尊崇的新中式迎宾大门
以“山”为门,提取新中式的优雅与从容,宽,则大大方方,高,则堂堂正正,是一种境界与智慧。用简单的线条和体块,展示正气大方的自我形象,构筑提振精神的强大中式气场。以100余米沉稳而有气势的临街展示界面,大门与景观墙一体化设计,传递“出可入世,入则隐心”的人文艺术气韵。

愉悦四季的园林盛景
在尊重自然原生地貌,依托山势地脉的基础上,潜心打造12米高差的三重台地景观艺术园境,台地起伏与景观相承呼应,造就美不胜收、层次感丰富的花园式景观体验。
以水的律动为灵感,提炼出水主题灵动元素,配合不同植物花卉、艺术雕塑点缀,以及层次丰富的地面艺术铺装,营造适合四季观赏的景观体验主题空间,形成气韵流畅的归家生活盛景。

星级酒店式入户大堂
以城市仰望的前沿标准,打造充满尊崇感的酒店式入户大堂。沉稳大气的灰色和亚金色系作为设计主基调,搭配多种高端材质的自然组合,运用富有设计感的线条装饰点缀,令整个空间更具层次感,让每一次出入都彰显轩朗气度。

尊享全精装电梯厅出入
入门前的第一道风景,悦享出入的尊贵礼仪。
智慧梯控,日立电梯快速直达,轿厢净高2.6米,享受奢阔私密的垂直空间。整体格调以高级灰配色简约大气彰显质感,融合纹理精美细腻的墙面、地面铺装,让归家的每一秒等待都精致美妙。

超大半山镜面无边际泳池
每一天都是度假时光
水主题元素贯穿整个园区景观中庭,配合精心设计布置的半山镜面无边际泳池,于畅游中体会山海一色,悠然于心。同时配置儿童嬉戏区、满足成人与孩童的多样化需求,犹如点缀海面上的颗颗晶钻,畅享365天假日生活。
独享园区内专属原生山林景观登山栈道,于山林至高处,观天际星河,繁星璀璨、海天一色,在鲜氧环绕的自然呵护中悠享纯美时光。

约1000㎡架空层 9大主题泛会所
一站式生活场
社区生活体系—打造私享会客厅、艺术书吧、童心乐园、轻氧健身室、半山茶舍、棋牌室、商务休闲吧、悦海餐厅、声乐琴房等9大生活主题,一站式生活服务,让业主回归生活,追寻理想的生活精彩。

金服物业 酒店式星级服务
金服物业全程酒店式管家服务,未来将为每一位业主提供礼宾式贴心服务,营造全方位的美好生活。多重社区智能化安防体系,呵护你生活的每一个细节。

奢华两房-五房府邸 高配品质生活
全系建筑面积约103-237㎡,涵盖两居到五居,尺度舒适设计精细,动静分区布局合理,完美满足“居住、度假”不同需求。

主题风格精装 品味生活艺术格调
设计师根据不同户型面积区间,设计呈现“现代轻奢”、“意式简约”、“时尚轻奢”等多种风格主题精装修,优雅生活,无忧开启。
现代轻奢 MODERN LUXURY

意式简约 ITALIAN SIMPLICITY

时尚轻奢 FASHION LUXURY

人性化细节设计 开启全新人居篇章
全系高标准轻奢装修,地面、墙面、厨房电器、橱柜、衣帽间衣柜、卫浴洁具、分户式中央空调、高档铝合金窗、品牌电梯、入户门等,甄选国内外一线品牌,礼遇品质人生。
户型鉴赏
HOUSE APPRECIATION
A户型
三房两厅两卫 建筑面积约 133㎡




B户型
两房两厅两卫 建筑面积约 103㎡



C户型
三房两厅两卫 建筑面积约 134㎡



A1户型
三房两厅两卫 建筑面积约 130㎡

A+B户型
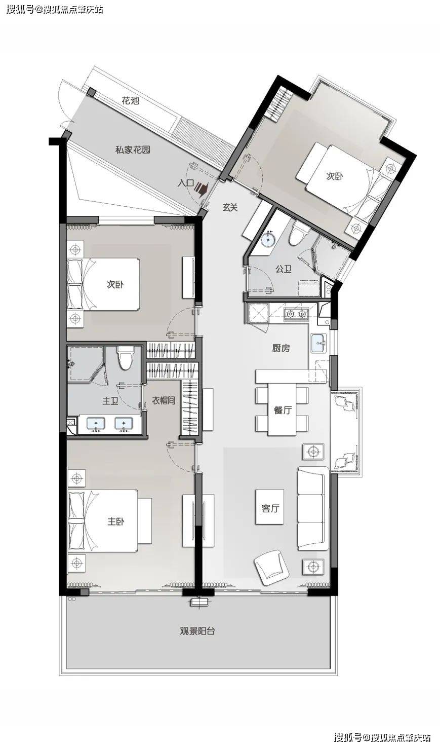
五房四厅四卫 建筑面积约 236㎡

B+C户型
五房四厅四卫 建筑面积约 237㎡

三亚半山首府营销中心电话0898-88868816【已认证】【24小时电话】
【欢迎来电预约看房0898-88868816 提前预约享受专属特价房源优惠】
三亚半山首府开发商营销中心——欢迎来电预约尊享折扣——恭迎品鉴