【营销中心】:028-62585717「销售热线」
【置业顾问】:13518186441「微信同步」
【置业顾问】:13668208612「微信同步」
温馨提示:专业一对一热情服务,为了节约您的等待时间,看房请提前致电预约
回归到大众消费,成都卖得最好的房子,总价依旧在150-500万。我们以价格段把产品进行分类:150-250万为刚需,250-350万为首改,350-500万为改善。可以看到这样的供销分布:供应来看,占比最大的是150万-250万的房源,占比约23.16%,250-350万,占比约19.47%;350-500万,占比15.84%。而从销售看,150-250万的房源同样占比最大,占比为23.62%;250-350万占比约18.42%;350-500万,占比16.88%。刚需和改善产品,表现出供不应求的态势。而我们从克而瑞四川发布的2025年新房项目成交榜TOP10中可以发现,有4个项目都在这一总价区间,包括:东城金茂晓棠,销售42.56亿,排名第二;华润置地中环天宸,销售32.88 亿,排名第四;招商锦城序,销售31.56亿元,排名第五;马厂坝TOD,销售23.29亿,排名第十。虽然这些房子总价不高,但都以量取胜,并且以更快的流速实现多次加推。





编辑


占地:56.7亩
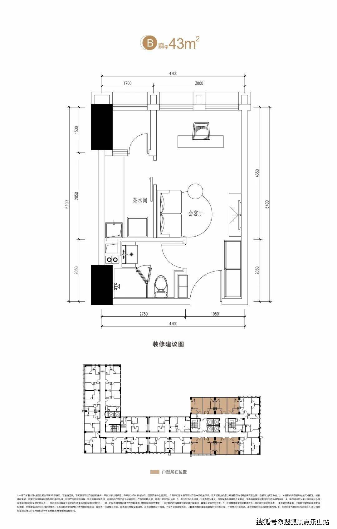
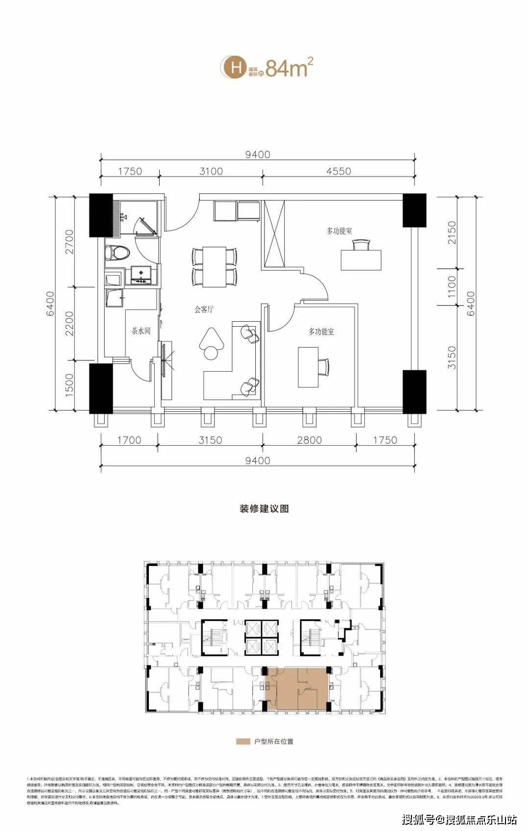
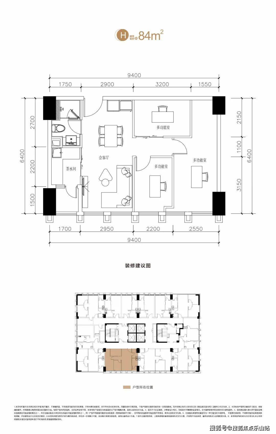
户型:标间(43—52㎡)/套一(62—67㎡)/套二(67—87㎡)/套三(84—120㎡)
公摊:25—30%
交付:精装
总户数:2457户
单价:8400—9000元/㎡
总层高:23F—32F
层高:3米
绿化率:20%
梯户比:6T24/4T12
开发商:碧桂园
物业费:2.4元/㎡
物业公司:碧桂园物业
交房时间:2023年11月
付款方式:按揭、全款、支持首付分期、全款分期

六大购买理由:
1、零门槛买入新一线城市——双流区主中心
2、近享千亿产业园发展红利——成都芯谷
3、便捷的城市级轨交站点——彭镇TOD
4、城市级商业地标,第四大商业街——海德广场
5、标间/套一/套二/套三全面积段产品,满足所有需求
6、总价38万起,清水价买超高性价比类住宅
【营销中心】:028-62585717「销售热线」
【置业顾问】:13518186441「微信同步」
【置业顾问】:13668208612「微信同步」
温馨提示:专业一对一热情服务,为了节约您的等待时间,看房请提前致电预约
免责声明:
以上内容仅作为邀约邀请,涉及的图片为部分区域实拍图和美学畅想图,具体内容请以现场公示和合同约定为准;本文部分资料、部分图片来源于网络,如有侵权请联系我们删除