从官网了解到,轨道交通测控科技园(新能源研发创新中心)总平面图调整公告发布。
项目地位置在高新区科学大道北、雪兰路东,来看调整详细内容。
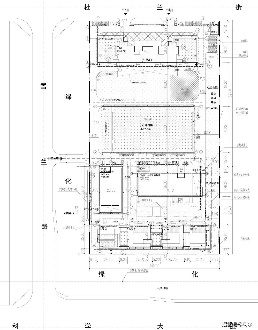
1、调整前总建筑面积109976.28㎡,调整后总建筑面积102534.37㎡。
2、调整前地上建筑面积83733.33㎡,调整后地上建筑面积72505.02㎡。
3、调整前容积率2.31,调整后容积率1.96。
4、调整前建筑密度36.07%,调整后建筑密度37%。
5、调整前绿地率35.93%,调整后绿地率35.01%。
6、调整后取消1号楼,增加1#研发办公楼、2#研发实验楼、3#研发实验楼,其它未尽事宜,详见调整前后图纸。

调整后总平面图 图源官网 仅供参考

调整后效果图 图源官网 仅供参考

延伸阅读
辉煌科技是一家集科研、生产、经营为一体的股份制高新技术企业。其前身为郑州辉煌科技有限公司,成立于1994年。是国内领先的轨道交通信号测控、运输指挥、通信技术开发和集成企业,是国家行业内首家上市的轨道交通通信、信号企业,拥有国家计算机信息系统集成一级资质。2009年9月29日,辉煌科技在深圳证券交易所A股上市,是国内轨道交通通信信号领域首家上市公司。