住宅楼设计
the carter building
在墨尔本,真正占据核心地段的高端项目并不多。而位于圣基尔达路(St Kilda Road)的卡特大厦(the carter building),正是其中少见的一例。
该项目耗资 3 亿澳元(约14.3 亿元人民币),是一座融合酒店及住宅的综合体,由 Orchard Piper 联合 The Carter Group 开发。项目定位清晰「不是追逐潮流,而是打造一个低调、安静、经得起时间考验的城市避风港」。

Part 01
蓝砂岩外立面
项目的建筑由 Kerry Hill Architects(KHA)设计,其核心思路并不是打造一个高调的城市地标,而是让建筑自然融入圣基尔达路的城市环境中,在尺度、材料和气质上与周边形成连续关系。

其中最直观的设计特征就是其蓝砂岩外立面。
蓝砂岩是墨尔本极具代表性的建筑材料之一。通过这种选择,在视觉上与周边的建筑产生呼应,而不是刻意强调“新”。

整个体量处理上,KHA 采用了深立面设计。这种做法一方面有效控制日照和热辐射,提升建筑的可持续性能。
立面的节奏、窗洞比例以及阴影变化,构成了建筑最主要的视觉表达。

底层的酒店入口延续了整体建筑“低调而内敛”的理念,通过空间层次的变化,营造出由城市进入私密空间的过渡体验。

住宅入口则与马路保持适当退让,在喧闹的城市界面与建筑内部之间形成缓冲。


Part 02
低调奢华的精品酒店
项目将酒店和私人服务式公寓整合于同一栋建筑中,旨在为旅客与住户提供兼具私密性与高端服务的综合生活方式。

酒店将占据大楼的前 9 层,是整个项目中最核心的公共功能部分。由国际知名的豪华酒店品牌 COMO Hotels and Resorts运营。这将是 COMO 在澳大利亚的第二家酒店,也是其首次进驻澳大利亚东海岸。

酒店共设 102 间客房,其中包含多间定制设计的家庭套房,既满足商务与度假需求,也兼顾家庭型客群的长期入住体验。


酒店空间的设计重点不在于规模感,而在于舒适度与私密性。客房布局强调开阔的室内尺度与良好的自然采光,结合克制的色彩和天然材质,营造安静、放松的居住氛围,避免流于短期流行的装饰风格。



酒店底层规划了餐厅、咖啡厅及酒吧空间,整体设计并未将其定义为只服务酒店住客的封闭区域,而是直接面向周边社区开放。

咖啡厅强调便捷与亲近感,为住户、酒店客人及路过行人提供日常社交节点。空间设计轻松而通透,桌椅灵活排列。大面积玻璃窗让室内光线充足,使咖啡厅成为全天候使用的温暖角落。

餐厅位于底层核心区域,设计上注重空间的开放感与流动性。通过落地玻璃与宽敞入口,引入自然光线,同时与街道形成视觉延伸。

酒吧位于底层稍偏内部的位置,兼顾私密性与开放性。空间设计强调氛围感,通过灯光、深色材质与舒适座椅创造放松体验。酒吧内部流线清晰,与餐厅及咖啡厅保持视觉和动线的联系,但又独立形成社交空间。


此外,酒店还配备多功能厅、先进的健身中心以及一座 20 米室内恒温泳池。这些设施不仅服务于酒店客人,也向住宅住户开放,强化酒店与住宅之间的共享关系。




Part 03
安静舒适的居住空间
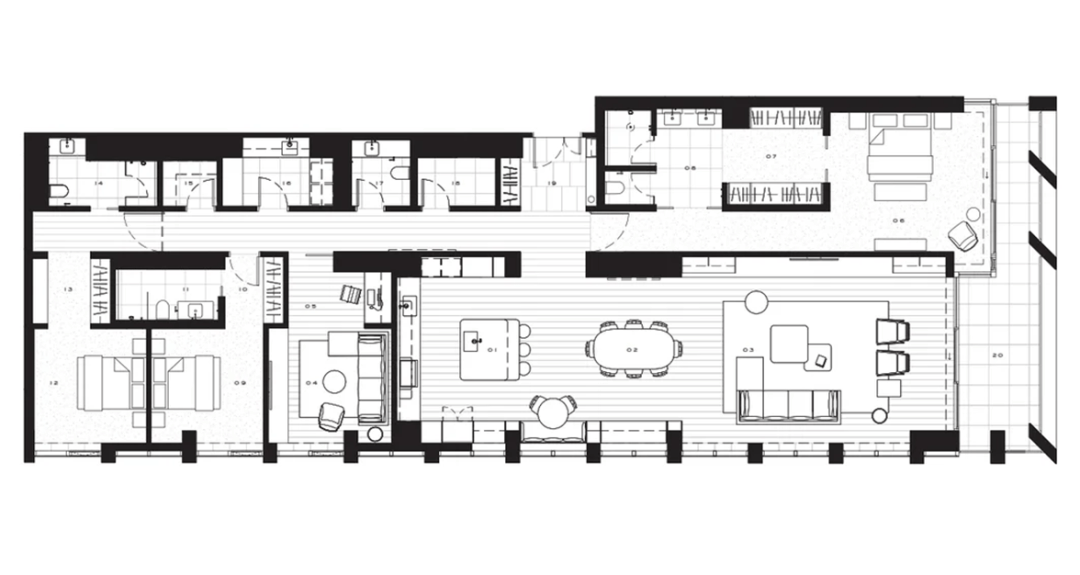
住宅部分共规划 54 套高端私人住宅,位于建筑的上部楼层,与下方的酒店空间形成清晰而有序的功能分区。这种垂直布局既保证了住宅的私密性,也让住户能够便捷共享酒店级的公共设施与服务。




左滑查看更多照片→
室内设计延续 Kerry Hill Architects 一贯的克制风格,避免过度装饰,更多通过材质和比例来塑造品质。


天然色调、本地石材与木质地面构成温暖而耐看的居住环境。


作为酒店式住宅的重要组成部分,住户可享受由 COMO 提供的全套酒店服务,包括礼宾、代客泊车、客房清洁及送餐服务等。这些服务并非附加装饰,而是被视为住宅生活方式的自然延伸,让高端居住回归轻松与从容。


项目已于今年 8 月正式开工,新酒店预计将于 2028 年初开业。
在追求「更高、更快、更显眼」的城市开发趋势中,卡特大厦选择了一条不同的路径「低调、稳健」,但足够长久。
//
将我们设为「星标★」才能第一时间收到推送